
강재 I-거더교의 중간다이아프램 강성 요건에 대한 연구
Copyright © 2025 by Korean Society of Steel Construction
초록
강재 I-거더교에서는 시공 중 횡비틀림좌굴의 방지를 위해 크로스프레임 또는 다이아프램 방식의 비틀림브레이싱을 설치한다. 본 연구에서는 휨강성이 크고 거더와의 연결에 편심이 없는 다이아프램 방식을 고려하였다. 브레이싱 시스템의 강성은 다이아프램의 휨강성, 이음판에 의한 단면의 뒤틀림 강성, 그리고 거더의 면내 강성의 조합으로 결정되며, 이를 토대로 정량화된 강성 요건이 최근 AASHTO LRFD 교량설계기준에 도입되었다. 하지만 다이아프램의 높이가 거더 높이의 최소 0.75배이어야 한다는 종래의 규정을 여전히 제시하고 있다. 본 연구에서는 다이아프램과 이음판의 조합 제원을 변수로 하여 다중 거더 시스템에 대해 3차원 비선형 유한요소해석을 수행하였다. 이로부터 거더의 휨모멘트가 횡비틀림좌굴강도에 도달할 때 거더의 거동 및 다이아프램과 이음판의 응력을 평가함으로써 중간다이아프램 제원의 합리적 결정 방안을 제안하였다.
Abstract
In steel I-girder bridges, torsional bracing, i.e., cross-frames or diaphragms, is installed to prevent lateral-torsional buckling during construction. This study considered a diaphragm system with high flexural stiffness and no connection eccentricity to the girders. The stiffness of the bracing system is determined by the combination of the flexural stiffness of diaphragm, the cross-sectional distortion stiffness provided by the connection plates, and the in-plane stiffness of the girder. Based on this, a quantified stiffness requirement has been introduced in the recent AASHTO LRFD Bridge Design Specifications. However, the conventional provision that the diaphragm depth shall be at least 0.75 of the girder depth is still maintained. In this study, 3-dimensional nonlinear finite element analyses were conducted on a multiple-girder system, with combination of the size of the diaphragms and connection plates as a major variable. The behavior of the girders and the stresses in the diaphragms and connection plates were evaluated when the girder flexural moment reached its lateral-torsional buckling strength, and a rational approach was proposed for determining the dimensions of intermediate diaphragms.
Keywords:
Steel I-girder bridges, Torsional bracing, AASHTO stiffness requirements, Size of diaphragms, Size of connection plates키워드:
강재 I-거더교, 비틀림브레이싱, AASHTO 강성 요건, 다이아프램 제원, 이음판 제원1. 서 론
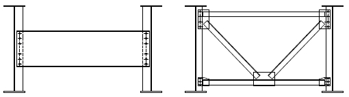
강재 I-단면 플레이트거더교는 경제적인 교량 형식이지만 단면의 비틀림강성이 적기 때문에, 특히 바닥판의 시공 중에 횡비틀림좌굴(lateral-torsional buckling, 이하 LTB)에 취약하다. 이에 따라 비틀림브레이싱 역할을 하는 Fig. 1과 같은 다이아프램 또는 크로스프레임을 적절한 간격으로 설치한다. 크로스프레임 방식은 강재 중량 측면에서 다이아프램 방식보다 유리하고 상·하현재가 거더의 상·하단 부근에 설치되므로 브레이싱의 높이가 높아 거더의 비틀림을 효율적으로 제어할 수 있다. 반면, 거싯판 연결의 편심으로 인한 이음강성의 저하와 피로 측면에서는 불리하다. 한편 다이아프램 방식은 크로스프레임 형식에 비해 거더의 비틀림에 저항하는 휨강성이 크고 편심연결이 없으며 구조상세가 단순한 장점이 있다.
종래의 AASHTO standard specifications[1]은 I-거더교에서 크로스프레임의 높이는 가급적 높게 하고, 다이아프램의 높이는 거더 높이(D)의 최소 0.5D, 가급적 0.75D로 규정하였다. 이후 AASHTO LRFD specifications[2],[3](이하 AASHTO LRFD 기준)은 크로스프레임과 다이아프램의 구분 없이 그 높이를 가급적 높게 하되 최소 0.75D로 제시하여 왔다.
I-거더교에서 비틀림브레이싱의 강성(stiffness) 및 강도(strength)에 대한 정량화된 요건은 Yura[4]에 의해 제안되었다. 이후 관련 연구들[5]-[8]을 거쳐 Yura의 강성 및 강도 요건이 steel bridge design handbook[9],[10]에 수록되었다. 한편 AASHTO LRFD 기준[3]에는 NCHRP[11]와 Han and Helwig[8]의 연구를 반영하여 브레이싱의 높이에 따라 세분화한 강성 및 강도 요건이 최근 도입되었다. 하지만 다이아프램의 높이를 ‘가급적 높게 하되 최소 0.75D로 한다’는 규정을 여전히 적시하고 있다. 참고로 국내 KDS 기준[12]에서는 ‘다이아프램의 높이를 가급적 높게 한다’라고 제시하고 있다.
앞에서 언급한 비틀림브레이싱의 강성 및 강도에 관한 연구들[5]-[8],[11]은 크로스프레임을 적용하여 수행되었다. 다이아프램 방식에 대해서는 Park et al.[13]이 다이아프램의 강성과 이음판의 제원에 따른 거더의 LTB 강도를 평가한 사례가 있으나 강성 요건과 관련한 연구가 부족한 실정이다.
본 연구에서는 I-거더교에서 중간다이아프램의 적정 제원을 고찰하기 위한 해석 연구를 수행하였다. 이를 위해 AASHTO LRFD 기준의 강성 요건을 만족하도록 다이아프램의 높이와 이음판 제원의 조합에 대해 재료 및 기하 비선형해석을 수행하고 브레이스 위치의 거더 거동과 구성 부재의 응력을 평가함으로써 중간다이아프램 제원의 합리적 결정 방안을 제안하였다.
2. 설계기준 및 배경
2.1 Steel Bridge Design Handbook
Yura[4]는 비틀림이 연속 브레이스된 보의 LTB 강도식으로부터 중간 브레이스의 강성 요건을 도출하였다. 그는 Fig. 2와 같이 거더의 초기회전처짐(θ0)의 크기를 Lb/500ho(Lb : 비지지 길이, ho : 플랜지 중심간 거리)로 가정하고 ‘이상강성(ideal stiffness)’의 2배의 강성이 적용되면 LTB 강도에 이르렀을 때 거더의 회전변위(θ)가 1.0θ0 정도로 제한되어 브레이싱 부재력이 크지 않을 것이라고 판단하였다. 여기서 ‘이상강성’은 횡지지점 사이에서 LTB가 발생하기 위한 임계강성에 해당된다. 이로부터 이상강성의 2배를 중간 브레이싱의 필요 강성으로 정의하되 거더의 LTB 강도 대신 최대 휨모멘트(Mu)를 적용하였다.
Steel bridge design handbook[9],[10]에서는 Yura의 제안을 채택하여 중간브레이싱의 필요 강성 (βT)req를 다음과 같이 제시하였다.
| (1) |
여기서, ϕsb : 저항계수(= 0.8), n : 중간다이아프램 수, E : 강재의 탄성계수(= 210,000 MPa), Iyeff : 거더의 연직축에 대한 유효단면2차모멘트(mm4), L : 지간(mm), Mu : 고정하중 및 시공활하중에 의한 계수 휨모멘트(N·mm), Cb : 모멘트경사 수정계수이다.
한편, 브레이싱 시스템의 실제 강성 (βT)act는 Yura의 제안으로부터 다음 식으로 정의된다.
| (2) |
여기서, βbr : 브레이스의 강성(N·mm/rad), βsec : 단면의 뒤틀림 강성(N·mm/rad), βg : 거더의 면내 휨강성(N·mm/rad)이다.
다이아프램이 거더 높이의 중간에 설치되는 경우 βbr은 다음과 같다.
| (3) |
여기서, Ib : 다이이프램의 단면2차모멘트(mm4), S : 거더 간격(mm)이다.
단면의 뒤틀림 강성은 다음 식으로 구한다.
| (4a) |
여기서,
| (4b) |
여기서, D : 거더 웨브 높이(mm), tw : 거더 웨브 두께(mm), bs : 이음판의 폭(mm), ts : 이음판의 두께(mm)이다.
이음판이 Fig. 3와 같이 거더 웨브 전체 높이에 걸쳐 설치되는 경우, hb 구간의 강성은 매우 큰 것으로 가정하고 hc와 ht 부분의 강성 βsecc와 βsect는 식 (4b)에서 hi에 각각 hc와 ht를 대입하여 구해진다, 단, 브레이싱의 높이(hb)가 거더 높이의 0.8배 이상이면 βsec은 무한한 값으로 간주한다.
한편 거더의 면내 강성은 다음 식으로 정의된다.
| (5) |
여기서, ng : 거더 수, Ix : 거더 강축방향 단면2차모멘트(mm4)이다.
2.2 AASHTO LRFD 기준
NCHRP 연구[11]에서는 크로스프레임 방식을 적용하고 ‘임계초기처짐’(the critical shape of imperfection)[5]을 적용한 3차원 모델의 해석으로부터 거더의 휨강도와 거더의 회전변위 관계를 분석하였다. 임계초기처짐은 거더의 휨모멘트가 최대인 브레이싱 위치에서 Fig. 2의 초기처짐을 갖는 형태이다. 이로부터 LTB 강도에 도달할 때 브레이스 위치의 거더 회전변위(θ)가 초기회전처짐(θ0)을 초과하지 않기 위해서는 식 (1)을 다음 식 (6)으로 증가시키도록 제안하였다.
| (6) |
한편 Han and Helwig[8]는 거더 전체 높이에 해당하는 크로스프레임을 적용한 연구로부터 거더의 비틀림좌굴이 적절히 구속되어 크로스프레임의 부재력이 비교적 작게 발생하는 결과를 얻었다. 이로부터 최근 AASHTO LRFD 기준[3]은 크로스프레임 또는 다이아프램의 높이가 0.8D 이상이면 식 (1)을 적용하고, 그 외의 경우 식 (6)을 적용하는 것으로 반영되었다.
3. 전산 해석
3.1 해석 경우
다이아프램(βbr과 연계)과 이음판(βsec과 연계)의 적정 제원을 고찰하기 위해 4-거더를 기본모델로 고려하였으며 제원은 Fig. 4와 같다. 강재는 주거더를 포함하여 다이아프램과 이음판 모두 HSB380으로 하였다. 거더의 웨브는 1,800×18 mm로 하여 웨브의 탄성 판좌굴을 배제하였으며, 플랜지는 450×35 mm로 하여 조밀플랜지를 적용하였다. 거더 간격(S)은 2,400 mm로 하였으며, 다이아프램의 간격(Lb)은 7,000 mm로 하여 지간 L = 28,000 mm의 단순교를 고려하였다. 한편, 거더 수에 따른 영향(βg와 연계)을 평가하기 위해 3-거더와 5-거더를 포함하였다.
해석 경우를 Table 1에 정리하였다. 다이아프램의 높이는 종래[1] 및 현재 기준[3]의 최소 높이 규정을 고려하여 0.5D, 0.67D, 0.75D의 세 경우를 고려하였으며, 다이아프램과 주거더의 단면2차모멘트비(Ib/Ix)를 제시하였다. 외측 거더에서의 이음판은 편측(거더 내측)에만 설치하고 제원은 식 (6)을 만족하도록 결정하였으며(case-1, case-2 및 case-3), 0.5D 경우에는 식 (1)을 만족하는 이음판(case-1a)을 포함하였다. 식 (1) 및 식 (6)에서 Mu는 AASHTO LRFD 기준 6.10.8.2.3의 LTB 강도 Mnc로 고려하였으며, 이는 Mu의 상한치에 해당될 것이다.
다이아프램 사이에 중간수직보강재 1개를 설치하는 것으로 하였다. 즉, 수직보강재의 간격은 3,500 mm이다. AASHTO LRFD 기준의 6.10.11.1.3에 따라 중간수직보강재의 필요 단면2차모멘트(It1)를 산정하면 5.25 × 106 mm4이며, 편측 설치 시 해당 제원은 113×11 mm가 된다. 이로부터 중간수직보강재 150×14 mm를 웨브 편측에 설치하였다. 한편 중간수직보강재 대비 외측거더 이음판(편측 설치)의 단면2차모멘트(Icon)의 비를 Table 1에 제시하였다. 내측 거더에서 이음판은 150×14 mm가 거더 양측에 설치되므로 내측 거더에서 βsec은 충분히 크다.
3.2 전산 모델 및 비선형해석
거더의 초기처짐은 ‘임계초기처짐’[5]을 적용하였다. 즉, 휨모멘트가 최대인 중앙 다이아프램 위치에서 Fig. 2와 같이 압축플랜지가 횡방향으로 Lb/500 이동하는 형태의 초기회전처짐(θ0)을 적용하였다. 초기처짐은 Fig. 5에 보인 바와 같이 모든 거더에 동일하게 적용하였다.
웨브 부분의 잔류응력이 휨강도에 미치는 영향은 미소하여[14] 잔류응력은 플랜지에만 고려하였다. Fig. 6에 보인 바와 같이 웨브에 접하는 플랜지 중앙에서 양측으로 1.1 tf에 해당하는 38 mm 구간에는 +1.0 Fy의 인장잔류응력을 가정하였으며[15], 이 때 압축잔류응력의 크기는 자체평형으로부터 –0.2 Fy가 된다.
ABAQUS 프로그램[16]을 사용하여 재료 및 기하 비선형해석으로 휨강도를 평가하였다. HSB380의 재료모델은 Fig. 7과 같이 이상화하였으며, von Mises 항복규준을 적용하였다. 모든 파트는 S4R 쉘요소로 모델링하였으며, 요소의 크기는 50 mm 내외로 충분히 세분화하였다. 지지조건은 단순교에 해당하도록 부여하였으며(Fig. 5 참조), 하중은 웨브와 접하는 상부플랜지에 등분포 선하중으로 재하하였다.
4. 해석 결과 및 분석
4.1 다이아프램과 이음판 제원에 따른 휨강도
FE 해석에 의한 case-1의 변형을 Fig. 8에 예시하였으며, 모든 case에서 최대 휨강도 도달 시 동일한 변형 형상을 보였다. 거더의 연직변위는 G1 거더에서 G4 거더로 갈수록 큰데, 그 이유는 Fig. 9에 보인 바와 같이 다이아프램의 휨변형에 수반하는 전단력이 거더에 연직력으로 작용하기 때문이다. FE 해석에 의한 휨모멘트(MFEA)와 LTB 강도(Mnc)의 비(MFEA/Mnc) 대비 G4 거더의 연직처짐을 Fig. 10에, 그리고 G1 거더의 회전변위비(θ/θ0)를 Fig. 11에 보였으며, 각 case 별 최대 휨모멘트비()와 이 때의 외측거더 회전변위비(θ/θ0)를 Table 2에 제시하였다. Mnc는 AASHTO LRFD 기준으로부터 1.2038×1010 N·mm로 산정되며, MFEA는 모멘트경사 수정계수 Cb(본 모델에서 1.06)을 고려한 것이다.
Fig. 10으로부터 다이아프램의 높이가 0.5D인 case-1과 case-1a도 LTB 강도 도달 시까지 연직처짐은 선형에 가까운 거동을 보인다. 한편 Fig. 11으로부터 회전변위는 브레이싱 강성이 증가할수록 감소하는 결과를 보이며, 브레이싱 강성이 식 (6)을 만족하는 경우(case-1, case-2, case-3) 최대 휨강도 도달 시 초기회전처짐(θ0)의 0.5배 내외, 식 (1)을 만족하는 경우(case-1a) 0.6배 정도로써 1.0θ0 이하이다.
Table 2로부터 모든 case에서 Mnc를 초과하는 휨강도를 보이며, 다이아프램의 높이 0.5D에서 1.026배, 0.75D에서 1.052배이다. 따라서 다이아프램의 높이가 0.5D, 즉 다이아프램의 단면2차모멘트(Ib)가 Ix의 5.5 % 수준에서도 이음판의 제원이 식 (6)을 만족하면 LTB 강도가 얻어졌다.
한편 MFEA/Mnc = 1.0에서의 변위를 Table 3에 정리하였다. MFEA/Mnc = 1.0일 때 거더의 연직변위는 브레이싱 강성에 관계없이 거의 같은 크기를 보인다. 회전변위는 식 (6)을 만족하는 강성 조건에서는 θ0의 0.2배 내외, 식 (1)을 만족하는 강성 조건에서는 약 0.3배로서 Yura[4]가 고려한 1.0θ0에 비해 충분히 여유가 있다. 따라서 다이아프램의 응력은 크지 않을 것으로 예상되며, 이에 대해서는 4.3절에서 분석하였다. 한편, 브레이싱 강성이 증가함에 따라 횡변위는 감소하는 경향을 보이며, case-1과 case-3의 차이는 7 mm 정도로써 L/4,000에 해당된다.
4.2 거더 수에 따른 휨강도
거더 수가 휨강도에 미치는 영향을 평가하기 위해 case-1의 4-거더의 다이아프램과 이음판의 제원을 유지한 채 3-거더(case-1-3)와 5-거더(case-1-5)를 고려하였다. 거더 수가 변화하면 βg 값이 변하여 Table 1에 보인 바와 같이 (βT)act가 변동하게 된다. 휨강도와 회전변위 결과를 Table 4와 Fig. 12에 제시하였다. 이로부터 거더 수가 작을수록 βg 값과 (βT)act가 감소하게 되어 휨강도는 감소하고 회전변위는 커지는 결과를 보인다. 따라서 거더 수가 브레이싱 시스템의 강성에 영향을 미치며, 이는 βg 인자로 고려됨을 보여 준다. 3-거더의 경우 식 (6)을 만족하지 않지만 거의 LTB 강도 Mnc에 도달하는 강도를 보인다.
이로부터 거더 수가 3개 이상일 때 다이아프램의 높이가 0.5D에서도 식 (6)의 강성 요건을 만족하면 LTB 강도의 확보가 가능함을 보여준다.
4.3 다이아프램 응력
MFEA/Mnc = 1.0일 때 외측 거더(G1, G4)의 이음판에 인접한 위치에서 다이아프램 플랜지의 수직응력(다이아프램 축방향)을 Table 5에 제시하였다. Table 5에서 플랜지폭 방향의 평균응력(avg.)은 브레이싱 강성이 증가함에 따라 감소하는 것을 보여준다. 반면 최대응력(max)은 다이아프램의 제원이 클수록 오히려 커진다. G1 거더의 이음판과 접하는 위치에서의 다이아프램 상·하 플랜지의 폭 방향으로의 응력분포를 Fig. 13에 제시하였다. 이로부터 플랜지의 중앙에서 상대적으로 큰 응력이 발생되며 다이아프램의 높이가 높을수록 이음판에 의한 응력집중 효과가 커지는 것을 보여준다.
하지만, 모든 case에서 플랜지의 최대응력은 주거더 항복강도(380 MPa)의 1/8에 불과하여 여유가 충분함을 보여 준다. 따라서 응력 측면에서는 다이아프램의 제원을 크게 할 이유는 없으며, 주거더보다 항복강도가 낮은 강재의 적용도 가능할 것으로 판단된다.
4.4 이음판 응력
MFEA/Mnc = 1.0일 때 다이아프램의 상·하 플랜지에 인접한 위치에서 이음판의 수직응력을 Table 6에 제시하였다. 이로부터 이음판의 응력 크기는 이음판 제원, 특히 두께와 밀접한 관계를 보이며 case-3의 경우 항복강도의 81 %에 해당하는 비교적 큰 응력을 보인다. 식 (6)을 만족하는 경우, 또는 식 (1)을 만족하는 경우에도 이음판의 응력은 항복강도 이하이지만 다이아프램 강성(βbr)을 크게 하고 이음판의 강성(βsec)을 작게하기 보다는 βsec을 크게 하고 βbr을 줄이는 것이 이음판의 응력 측면에서는 유리하다.
한편 이음판의 최소 제원에 대한 규정은 AASHTO LRFD 기준에서 제시되지 않았다. 본 예에서 중간수직보강재의 필요 제원이 113×11 mm이며, 이에 가까운 이음판 제원은 case-2이다. 이 때 응력은 항복강도에 비해 여유가 있다. 따라서 이음판의 최소 제원은 중간수직보강재의 단면2차모멘트(It1: AASHTO LRFD 기준 6.10.11.1.3) 이상으로 하는 것이 필요하며, 강재는 주거더와 동등한 강재를 적용하도록 제안한다.
5. 결 론
본 연구에서는 I-단면 플레이트거더교에서 비틀림브레이싱으로 다이아프램을 적용한 경우, 적정 제원에 대해 고찰하였다. 본 연구의 주요 결론은 다음과 같다.
- (1) 다이아프램의 높이가 0.5D 이상일 때 다이아프램 강성(βbr)과 단면 뒤틀림강성(βsec)의 조합이 식 (6)의 강성 요건을 만족하면 AASHTO LRFD 기준의 LTB 휨강도 Mnc가 얻어졌으며, 또한 식 (1)을 만족하는 경우에도 Mnc가 얻어졌다.
- (2) 거더 수에 따른 브레이싱 시스템의 강성((βT)act)은 βg 인자로 적절히 고려되는 것으로 평가되었다. 거더 수가 3개 이상일 때 다이아프램의 높이가 0.5D에서도 식 (6)의 강성 요건을 만족하면 Mnc가 확보 가능한 것으로 나타났다.
- (3) 거더 휨모멘트의 크기가 Mnc에 도달하였을 때 다이아프램 시스템이 식 (6)을 만족하는 경우 거더 회전변위(θ)는 초기회전처짐(θ0)의 0.2배, 식 (1)을 만족하는 경우 0.3배로써 Yura가 고려한 1.0θ0에 비해 작았다. 이에 따라 다이아프램 플랜지의 최대 수직응력은 항복강도에 비해 1/8 수준에 불과하였으며, 따라서 주거더보다 항복강도가 낮은 강재의 적용이 가능할 것으로 판단되었다.
- (4) 이음판의 제원이 작을수록 판두께가 얇아지므로 이음판의 응력이 증가하였다. 외측거더에서 편측 설치를 전제로 할 때 이음판의 최소 제원은 AASHTO LRFD 기준의 중간수직보강재의 필요 단면2차모멘트(It1) 이상으로 하는 것이 필요하며, 주거더와 동일 강재를 적용하는 것이 바람직하다.
- (5) 본 연구에서는 식 (1)과 식 (6)에서 고정하중과 시공활하중에 의한 모멘트인 Mu를 LTB 강도 Mnc로 고려하였는데, 이는 Mu의 상한치에 해당된다. case-1의 경우와 같이 다이아프램의 높이가 0.5D이더라도(단면2차모멘트로는 주거더의 5.5 %) 이음판의 제원이 식 (6)을 만족하면 LTB 강도가 확보되었다. 따라서 적어도 직선교에서는 다이아프램의 높이를 0.75D 이상으로 할 필요는 없다고 판단된다.
Acknowledgments
이 논문은 부산대학교 기본연구지원사업(2년)에 의하여 연구되었음.
References
- American Association of State Highway and Transportation Officials. (2002) Standard Specifications for Highway Bridges (17th Ed.), Washington, D.C.
- American Association of State Highway and Transportation Officials. (2020) AASHTO LRFD Bridge Design Specifications (9th Ed.), Washington, D.C.
- American Association of State Highway and Transportation Officials. (2024) AASHTO LRFD Bridge Design Specifications (10th Ed.), Washington, D.C.
-
Yura, J.A. (2001) Fundamentals of Beam Bracing, Engineering Journal, American Institute of Steel Construction, AISC, Vol.38, No.1, pp.11–26.
[https://doi.org/10.62913/engj.v38i1.750]
-
Wang, L., and Helwig, T. (2005) Critical Imperfections for Beam Bracing Systems, Journal of Structural Engineering, ASCE, Vol.131, No.6, pp.933–940.
[https://doi.org/10.1061/(ASCE)0733-9445(2005)131:6(933)]
-
Wang, L., and Helwig, T. (2008) Stability Bracing Requirements for Steel Bridge Girders with Skewed Supports, Journal of Bridge Engineering, ASCE, Vol.13, No.2, pp.149–157.
[https://doi.org/10.1061/(ASCE)1084-0702(2008)13:2(149)]
-
Liu, Y., and Helwig, T. (2020) Torsional Brace Strength Requirements for Steel I-Girder Systems, Journal of Structural Engineering, ASCE, Vol.146, No.1, p.1.
[https://doi.org/10.1061/(ASCE)ST.1943-541X.0002482]
-
Han, L., and Helwig, T. (2020) Elastic Global Lateral-Torsional Buckling of Straight I-shaped Girder Systems, Journal of Structural Engineering, ASCE, Vol.146, No.4.
[https://doi.org/10.1061/(ASCE)ST.1943-541X.0002586]
- Federal Highway Administration. (2015) Steel Bridge Design Handbook: Bracing System Design (FHWA-HIF-16-002 – Vol.13), Washington, D.C.
- Helwig, T., and Yura, J. (2022) Steel Bridge Design Handbook: Chap. 13, Bracing System Theory and Design for I-Girders and Tub Girders, American Institute of Steel Construction.
-
Reichenbach, M. et al. (2021) Proposed Modification to AASHTO Cross-Frame Analysis and Design, NCHRP Report 962, National Cooperative Highway Research Program, Washington, D.C.
[https://doi.org/10.17226/26074]
- Korea Construction Standards Center. (2024) Design Standards for Steel Members(Load and Resistance Factored Design), KDS 14 31 10, Ministry of Land, Infrastructure and Transport (in Korean).
- Park, Y.M., Hwang, S.Y., Park, J.B., Hwang, M.O., and Choi, B.H. (2009) Numerical Evaluation of Lateral-Torsional Buckling Strength in I-section Plate Girder Bridges, Journal of Korean Society of Steel Construction, KSSC, Vol.21, No.3, pp.321–330 (in Korean).
-
Park, Y.M., Lee, K.J., Choi, B.H., and Cho, K.I. (2016) Modified Slenderness Limits for Bending Resistance of Longitudinally Stiffened Plate Girders, Journal of Constructional Steel Research, Elsevier, Vol.122, pp.354–366.
[https://doi.org/10.1016/j.jcsr.2016.04.003]
-
Chacon, R., Serrat, M., and Real, E. (2012) The Influence of Structural Imperfections on the Resistance of Plate Girders to Patch Loading, Thin-Walled Structures, Elsevier, Vol.53, pp.15–25.
[https://doi.org/10.1016/j.tws.2011.12.003]
- Dassault Systmes Simulia Corp. (2022) Abaqus Analysis User’s Manual, DSS, USA.













